CUCINA CON MOBILE TV INTEGRATO
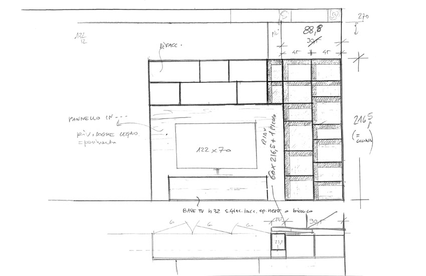
In questo progetto su misura, grazie all’utilizzo del ferro è stata creata un libreria a disegno bifacciale: da una parte contiene le colonne della cucina, dall’altra diventa mobile tv. Lo spazio risulta caratterizzato da un elemento di design perfettamente integrato, che divide lo spazio ma allo stesso tempo lascia passare luce e sguardo.
ITER PROGETTUALE
Nello slider sottostante potrete osservare alcune delle fasi del nostro lavoro: un primo schizzo, una vista prospettica per iniziare a vedere i colori, un render vicino all’idea definitiva ed infine la foto del risultato finale.



